BRINDISI CENTRO – LOCALE COMMERCIALE CON VOLTE A STELLA
BRINDISI- 1 bagno
- 80 m²
Condividi questo immobile
Caratteristiche
- Categoria: Commerciale
- Stato: Vendita
- Tipologia: Negozio
- Bagni: 1
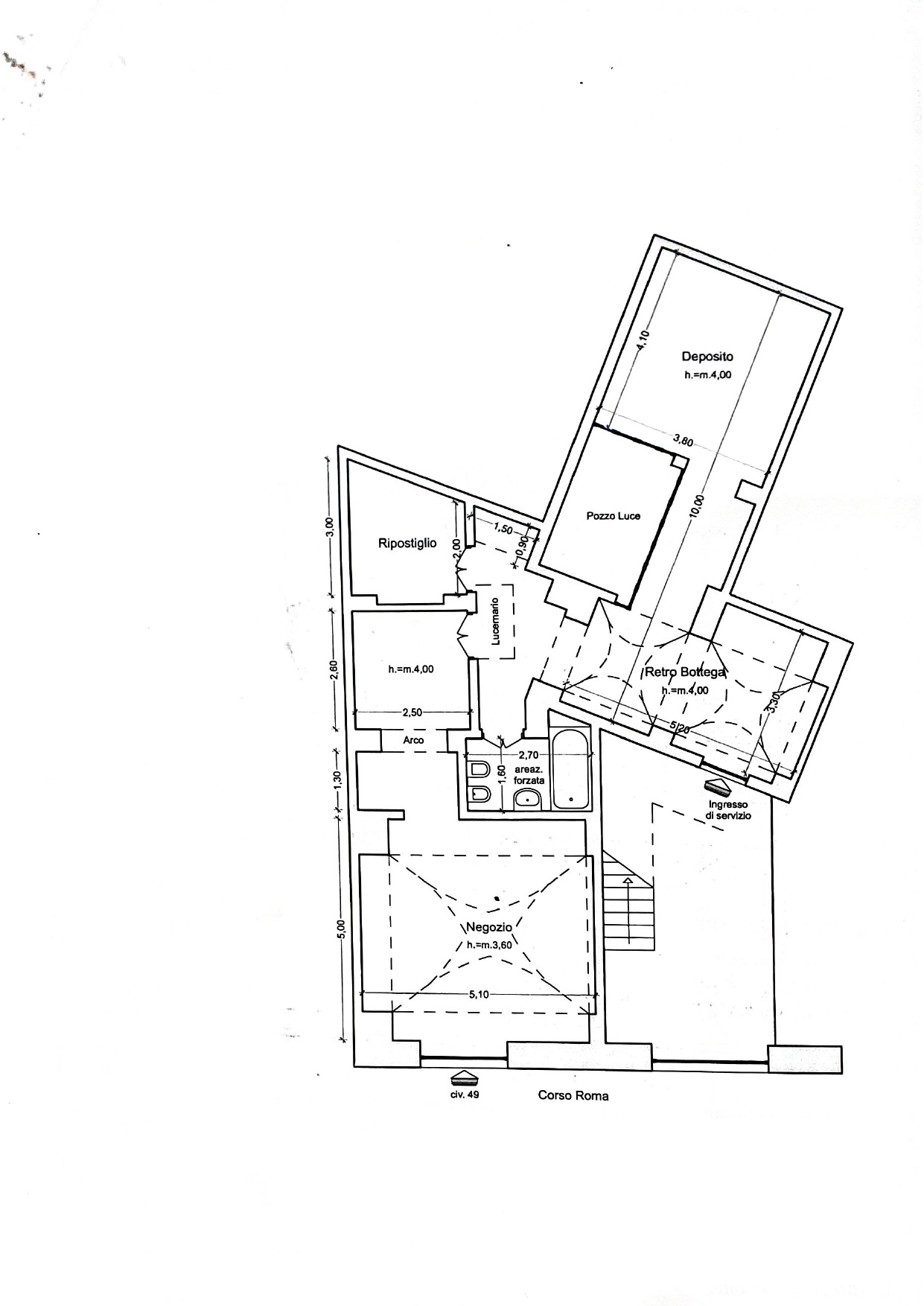
- Vani totali: 4
- Piani: 2
- Area, m²: 80 m²
Descrizione
-
Descrizione:
In vendita a Brindisi – Nel cuore del centro storico
Nel pieno centro di Brindisi, in una delle zone più vive e frequentate della città, proponiamo in vendita un affascinante locale commerciale di circa 80 mq, situato al piano terra e ideale per avviare o trasferire la tua attività.
L'immobile, inserito in un contesto medio signorile, si distingue per i suoi ambienti ampi e ben distribuiti, suddivisi in quattro vani funzionali che si prestano perfettamente a molteplici soluzioni professionali: boutique, studio professionale, showroom, laboratorio artigianale o attività di servizi.
A rendere unico questo spazio sono le caratteristiche volte a stella, elemento architettonico tipico e di grande fascino, che donano prestigio, personalità e un'atmosfera accogliente agli ambienti, valorizzando l'immobile sia dal punto di vista estetico che commerciale.
Il locale è dotato di bagno, si presenta in condizioni abitabili ed è quindi immediatamente disponibile all'utilizzo. L'ingresso indipendente garantisce autonomia e visibilità, mentre lo spazio esterno di circa 6 mq al piano terra rappresenta un valore aggiunto: perfetto per piccole esposizioni, allestimenti o come area di accoglienza per la clientela.
La posizione centrale assicura elevato passaggio pedonale e ottima visibilità, caratteristiche fondamentali per qualsiasi attività commerciale che voglia distinguersi.
Un'opportunità interessante per chi desidera investire in una location strategica, ricca di carattere e potenzialità.
Contattaci per maggiori informazioni o per fissare una visita.
Dettagli immobile
- Condizionamento: No
- Riscaldamento: Non disponibile
- Classe energetica: G (DL 192/2005)
- Posto auto: No
